8810 North Fork Road Grand Forks, British Columbia V0H 1H2
$1,890,000
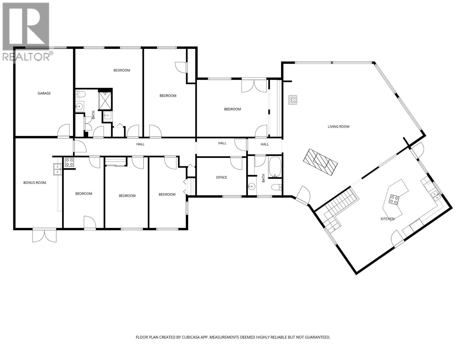
A rare opportunity to own 200 acres in an unbeatable location just a couple of minutes from town, with nearly 2 km of Granby River frontage and all the infrastructure in place for country living, a horse enthusiast or a cattle operation. This one-of-a-kind property is well set up for ranch use, featuring 2 hay barns, equipment sheds, a workshop, and a wheel line move with pump house for irrigation (the pump house has not been used since 2018). The impressive main log home offers 3035 sq ft on the main floor alone, with a vaulted-ceiling living room, kitchen, dining area, entryway, primary bedroom, 5 additional bedrooms, 2 bathrooms, an office, storage room, and attached single garage. The covered deck takes in beautiful mountain and valley views overlooking the property. The lower level adds even more functional space with a rec room, office, laundry, wood storage, 2 bedrooms, and another storage room. A second log home adds excellent potential for extended family, guests, or ranch help, with living, kitchen, dining, and a half bath upstairs, plus 3 bedrooms, a bathroom, and an attached double garage downstairs. With its incredible location, river frontage, and setup for livestock or hay production, this is a truly special rural property with endless potential. Call your agent to view today! (id:48309)
Property Details
| MLS® Number | 10383347 |
| Property Type | Single Family |
| Neigbourhood | Grand Forks Rural |
| Parking Space Total | 3 |
| View Type | River View, Mountain View, Valley View |
| Water Front Type | Waterfront On River |
Building
| Bathroom Total | 3 |
| Bedrooms Total | 7 |
| Appliances | Range, Refrigerator, Dishwasher, Dryer, Freezer, Washer |
| Architectural Style | Log House/cabin |
| Constructed Date | 1991 |
| Construction Style Attachment | Detached |
| Flooring Type | Ceramic Tile, Hardwood |
| Heating Type | Forced Air |
| Roof Material | Metal |
| Roof Style | Unknown |
| Stories Total | 1 |
| Size Interior | 4,552 Ft2 |
| Type | House |
| Utility Water | Well |
Parking
| See Remarks | |
| Additional Parking | |
| Covered | |
| Attached Garage | 3 |
Land
| Acreage | Yes |
| Sewer | Septic Tank |
| Size Irregular | 200 |
| Size Total | 200 Ac|100+ Acres |
| Size Total Text | 200 Ac|100+ Acres |
Rooms
| Level | Type | Length | Width | Dimensions |
|---|---|---|---|---|
| Basement | Other | 27'8'' x 19'10'' | ||
| Basement | Other | 7'5'' x 15'1'' | ||
| Basement | Den | 16' x 10' | ||
| Basement | Bedroom | 12'8'' x 10'4'' | ||
| Basement | Storage | 7'6'' x 7'8'' | ||
| Basement | Storage | 7'7'' x 8'7'' | ||
| Basement | Recreation Room | 21'9'' x 28'6'' | ||
| Basement | Storage | 8'10'' x 12'8'' | ||
| Basement | Laundry Room | 9'1'' x 7'10'' | ||
| Basement | Full Bathroom | Measurements not available | ||
| Main Level | Primary Bedroom | 15'9'' x 11'9'' | ||
| Main Level | Storage | 20' x 10'5'' | ||
| Main Level | Workshop | 12'10'' x 19' | ||
| Main Level | Full Bathroom | Measurements not available | ||
| Main Level | Bedroom | 8'11'' x 15'7'' | ||
| Main Level | Bedroom | 15'4'' x 17' | ||
| Main Level | Bedroom | 9'3'' x 15'9'' | ||
| Main Level | Bedroom | 19'2'' x 11'4'' | ||
| Main Level | Bedroom | 7'9'' x 15'10'' | ||
| Main Level | Den | 10'3'' x 8'3'' | ||
| Main Level | Full Bathroom | Measurements not available | ||
| Main Level | Foyer | 11'10'' x 7'10'' | ||
| Main Level | Living Room | 19'10'' x 30'7'' | ||
| Main Level | Dining Room | 16'6'' x 13' | ||
| Main Level | Kitchen | 15'10'' x 13' | ||
| Secondary Dwelling Unit | Bedroom | 10'5'' x 10'2'' | ||
| Secondary Dwelling Unit | Bedroom | 10'5'' x 8'7'' | ||
| Secondary Dwelling Unit | Primary Bedroom | 12'5'' x 10'2'' | ||
| Secondary Dwelling Unit | Partial Bathroom | Measurements not available | ||
| Secondary Dwelling Unit | Other | 6'11'' x 9'5'' | ||
| Secondary Dwelling Unit | Living Room | 16'9'' x 16'7'' | ||
| Secondary Dwelling Unit | Dining Room | 9'6'' x 10'2'' | ||
| Secondary Dwelling Unit | Kitchen | 10'2'' x 9'6'' |
https://www.realtor.ca/real-estate/29625122/8810-north-fork-road-grand-forks-grand-forks-rural
Contact Us
Contact us for more information
Logan Melville
Personal Real Estate Corporation
www.liveingrandforks.com/
272 Central Avenue
Grand Forks, British Columbia V0H 1H0
(250) 442-2711










































































